物件の特徴
主な特徴
前道6m以上
建築条件無
◆JRおおさか東線「城北公園通」駅徒歩11分
物件概要
| 価格 | 3,000万円 | 坪単価 | 坪167.6万円 |
|---|---|---|---|
| 物件種別 | 土地 | ||
| 所在地 | 大阪府大阪市都島区内代町4丁目 | ||
| アクセス | JRおおさか東線『城北公園通』 徒歩11分 (約880m) |
||
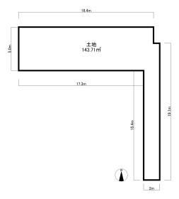
| 土地面積 | 公59.19㎡(17.90坪) | 接道 | 北東側幅 約6.1m 西側幅 約10.9m |
| 私道 | セットバック | ||
| 最適用途 | 住宅用地 | 造成完了時期 | |
| 地目 | 宅地 | 地勢 | |
| 権利 | 所有権 |
||
| 都市計画 | 市街化区域 |
用途地域 | 1種住居 |
| 建ぺい/容積率 | 80% / 200% | 土地国土法 | |
| 許可番号 | 建築基準法 | ||
| 法令制限 | |||
| 小学区 | 中学区 | ||
| 現況 | 更地 | 引渡 | 相談 |
| 建築条件 | 建築条件なし | ||
| その他費用 | |||
| 備考 | |||
| 物件番号 | 4548461 | 取引態様 | 媒介 |

























担当エージェント:戎谷
◆お気軽にお問い合わせください♪